Používame cookies

Súbory cookie a ďalšie technológie sledovania používame na zlepšenie vášho zážitku z prehliadania našich webových stránok, na to, aby sme vám zobrazovali prispôsobený obsah a cielené reklamy, na analýzu návštevnosti našich webových stránok a na pochopenie toho, odkiaľ naši návštevníci prichádzajú. Viac info

Ponúkame Modulovú stavbu vo Svinici za výhodných podmienok

Popis nehnuteľnosti

Zdieľať na Facebooku

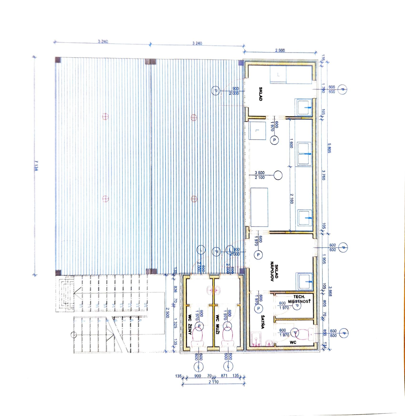
Spoločnosť THE PARTNERS - Fingo, a.s. - Ponúkame, Modulovú stavbu vo Svinici za výhodných podmienok:

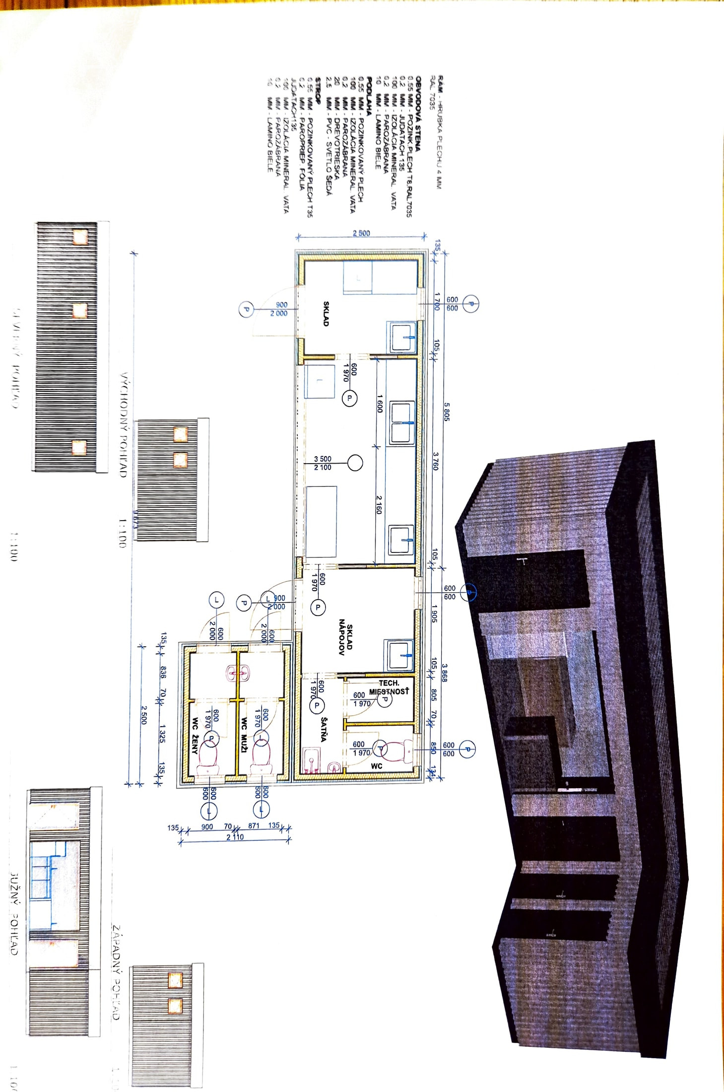
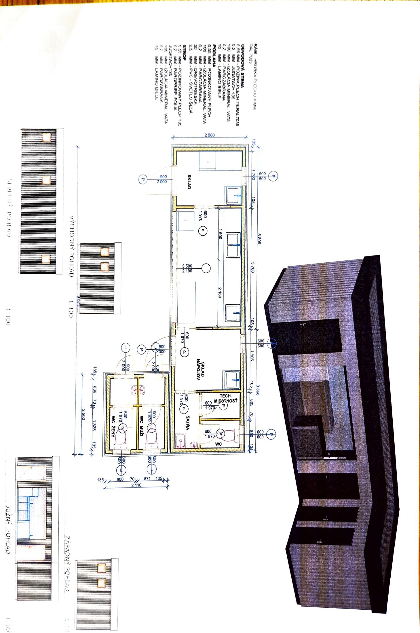
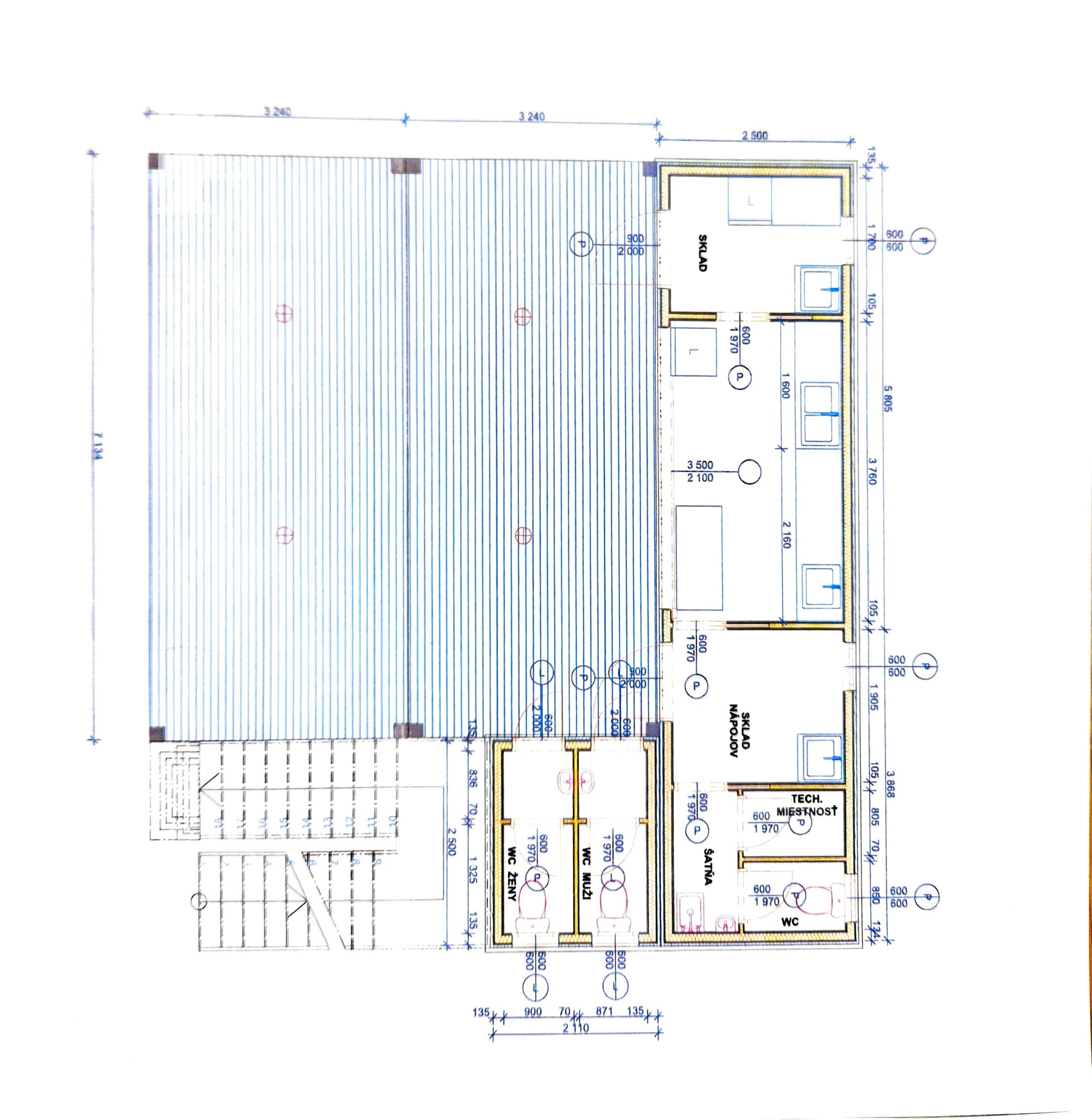
1.) Etapa - Výroba zmrzliny a predajňa + toalety pre zákazníkov - Jún 2019.

- Modul pozostáva z dvoch častí,
 
- Prvá časť je samotná predajňa, v ktorej je vnútorný priestor členený na: 

1. Výrobu zmrzliny - poprípade sa táto miestnosť dá využívať na prípravu nápojov alebo občerstvenia alebo ako sklad - čo je dôležité - má aj samostatný vchod na príjem a výdaj tovaru - obsahuje dvojdrez.         

2. Samotná predajňa s obslužným pultom, miestom na pokladňu, priestor na umiestnenie zmrzlinovej vitríny, priestor pre umiestnenie výčapu, kávovaru, zabudovanej chladničky na nápoje, umývačky a štedrý odkladací priestor na riad, či tovar - predajňa vybavená pohyblivou hlinikovou roletou zn. Wisniowski na elektrický a aj manuálny pohon. Obsahuje dvojdrez a aj samostatné umývadlo.

3. Suchý sklad s miestom pre sudy k výčapu  - príprava na umývadlo,

4. Samostatný služobný vchod pre personál,

5. Technická miestnosť s bojlerom a výlevkou,   

6. Šatňa, 

7. Sklad čistiacich prostriedkov,  

8. WC s predsieňou s umývadlom pre personál. 


Všetky miestnosti sú vetrateľné - majú okienko, poprípade technická miestnosť vetračku. Tento modul predpripravený pre možnosť nadstavby.    

- Druhá časť - WC pre zákazníkov - Samostatné WC s predsieňou s umývadlom - Zvlášť pre ženy a zvlášť pre mužov. Všetky umývadlá sú napojené na bojler (teplá voda).             
                                                                               
2.) Etapa- zastrešenie terasy + terasa na poschodí a schodisko - Január 2021.
    
1. Terasa na prízemí prestrešená, s osvetlením,  

2. Terasa na poschodí nadimenzovaná na cca 30 ľudí - možnosť umiestnenia vírivky a sauny.

Stavba je skolaudovaná a schválená hygienou ako Výroba a predaj zmrzliny, predaj teplých a studených nápojov, predaj zákuskov a občerstvenia, kaviareň.

Zhotoviteľ stavby Rikostav Container - Montáž, demontáž.


Predajná cena: 28 000 bez DPH.

Predávame len modulovu stavbu bez ihriska, sedenia a strojoveho vybavenia. V prípade záujmu je dohoda možná!

Súčasťou predaja sú toalety, darling, bojler, výlevka a nábytok na mieru.

Konakt: +421 907 292 345 Maklér: Bc. Ivan Mikloš, DiS., RSc..

www.thepartners.sk / LIONLEADERS.

Vlastnosti

Status:
aktívne
Vlastníctvo:
osobné
Úžitková plocha:
110 m2
Zastavaná plocha:
55 m2
Stav:
úplne prerobený
Celková plocha:
110 m2

Hypotekárna kalkulačka

33 000 € Objekt predáva S.R.O.
Ulica: Svinica
Obec: Svinica
Okres: Košice - okolie
Kraj: Košický kraj
Druh: Objekty
Typ: Predaj
Typ objektu: Polyfunkčná budova
Iné:

Radi Vám poradíme